NFK南国工业株式会社 接头 NK-8300
NFK南国工业株式会社 接头 NK-8300
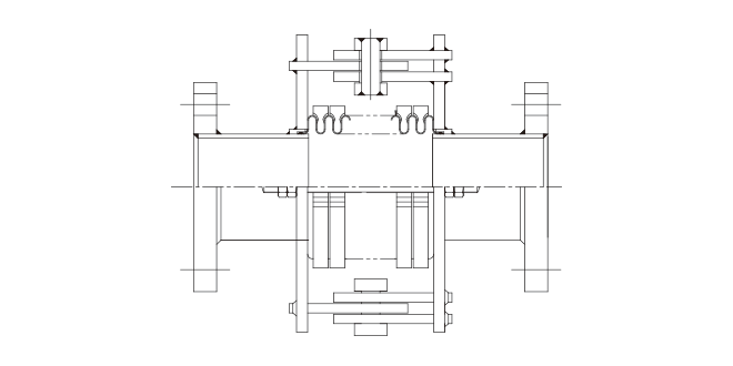
特色
通过在铰链(接头)中心用销子固定风箱,可以抑制推力,使结构能够吸收单向的角位移,同时使用两个或更多包茎,可以大幅吸收管子的挠度。
适用流体:蒸汽、废气、水、空气
适用波纹管:MF、HF
材料:SUS304、SUS316L
*也可以制造其他钢材等级。
NK-8300

产品材料
| 风箱 | SUS304 SUS316L SUS310S |
|---|---|
| 耐压环 | FC200、SS400、SUS304 |
| 法兰 | 碳钢和不锈钢 |
| 端管 | 碳钢和不锈钢 |
| 间隔器 | 碳钢和不锈钢 |
| 导向法兰 | SS400 / SUS304 |
| 铰链臂 | SS400 / SUS304 |
| 铰链销 | SS400 / SUS304 |
| 赛特·布雷特 | SS400 / SUS304 |