NFK南国工业株式会社 接头 NK-8600
NFK南国工业株式会社 接头 NK-8600
特色
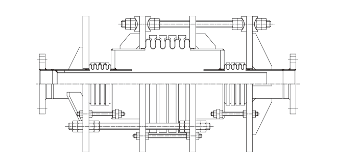
其结构包括一个吸收位移的伸缩波纹管和一个平衡波纹管,这些波纹管的横截面积是伸缩波纹管的两倍,并被安装以抵消推力,因此只有膨胀和收缩产生的反作用作用在固定点上,从而降低了固定点的强度。
适用流体:蒸汽、废气、水、空气
适用波纹管:MF、HF
材料:SUS304、SUS316L
*也可以制造其他钢材等级。
NK-8600

产品材料
| 法兰 | 碳钢和不锈钢 |
|---|---|
| 管道 | 碳钢和不锈钢 |
| 导向法兰 | 碳钢和不锈钢 |
| 弹性风箱 | SUS304 SUS316L SUS310S |
| 平衡风箱 | SUS304 SUS316L SUS310S |
| 内桶 | SUS304 SUS316L SUS310S |
| 球形垫圈 | 碳钢和不锈钢 |
| 加固肋骨 | 碳钢和不锈钢 |
| 环 | 碳钢和不锈钢 |
| 耐压环 | FCD200、SS400、SUS304 |
| 持有人 | 碳钢和不锈钢 |
| 赛特·布雷特 | SS400 / SUS304 |
| 拉杆 | 碳钢和不锈钢 |